https://www.arcovara.ee/342436
Müüa maa Rahnu tee 6, Lohusalu küla, Lääne-Harju vald, Harju maakond
Detailid
| ID: | 342436 | www.arcovara.ee/342436 |
| Aadress: | Rahnu tee 6, Lohusalu küla, Lääne-Harju vald, Harju maakond |
| Kinnistu suurus: | 894.00 m² |
| Energiaklass: | Energiamärgis puudub |
| Tehingu liik: | Müüa |
| Objekti tüüp: | Elamumaa |
| Muu: | Tsentraalne vesi |
| Objekti tüüp: | Kinnisasi |
| Kanalisatsioon: | Lokaalne |
Elamukrunt Lohusalus – 140 m merest // UUS HIND //
Maa Vaata ka videot Lisa lemmikutesseHind
| Hind | 130 000 € |
| m² hind | 145.4 € |
Kirjeldus
// kehtiv ehitusluba, arhitektuuriprojekt olemas – kaasaegne ja loodusega harmoneeruv elamu //
Vaata projektivisualiseeringut: ninja-stuudio.ee/projektid/elamu-lohusalus
Tule koos minuga videotuurile: https://youtube.com/shorts/WvKFUCpdw44
KRUNT
Rahnu tee 6 on privaatne 894 m² suurune elamumaa tupiktänava lõpus, kõigest 140 m merest. Kinnistu piirneb osaliselt loodusliku rohevööndiga, mis tagab vaikuse ja privaatsuse – ideaalne neile, kes hindavad tasakaalu looduse ja kvaliteetse elukeskkonna vahel.
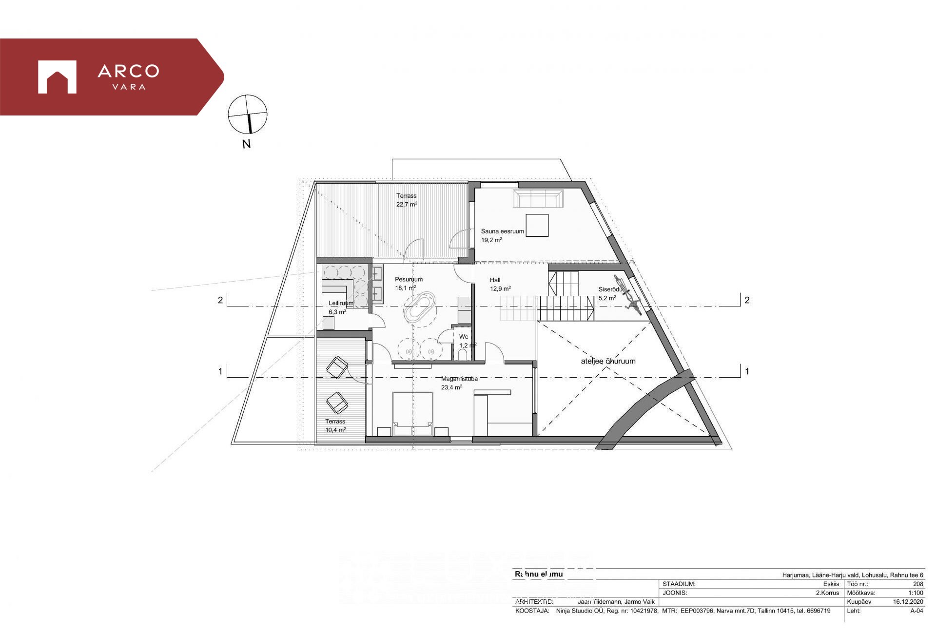
Kinnistule on väljastatud kehtiv ehitusluba ning olemas on projekteeritud 2-korruseline 218,8 m² suletud netopinnaga arhitektidelt Jaan Tiidemann ja Jarmo Vaik (Ninja Stuudio osaühing).
EHITUSLUBA JA PROJEKT
Ehitusluba nr 2112271/16954, väljastatud 20.05.2021
Ehitamise alustamise teatis esitatud samal päeval – luba kehtib kuni elamu valmimiseni
Kaasaegne ja loodusega haakuv arhitektuur, hoone kõrgus 7,9 m
Energialahendus: soojuspump, ahi, kamin, pliit
Kütteviis: lokaalküte, kohtküte
KOMMUNIKATSIOONID
Elekter: liitumispunkt olemas, liitumistasu tasutud (16A, 3 faasi)
Vesi: tsentraalne, liitumine kinnistu piiril
Kanalisatsioon: lokaalne (nt septik või biopuhasti)
Tehniline dokumentatsioon: kõik eriosade projektid olemas (sh elektri- ja ventilatsiooniseletused)
ÜMBRUS JA LIGIPÄÄS
Avalik ligipääsutee olemas
Lohusalu liivarand 2 min jalutuskäigu kaugusel
Arvo Pärdi Keskus, Laulasmaa SPA, Lohusalu sadam – kõik lühikese autosõidu kaugusel
Bussipeatus "Lohusalu" 7 min jalutuskäigu kaugusel
Tallinn 35–40 min autosõitu (Laulasmaa tee kaudu)
SOBIB
Tulevaseks koduks, suvekoduks või investeeringuks – projekteerimisel on arvestatud nii aastaringse elamise kui ka puhkeotstarbelise kasutusega. Sobib inimestele, kes otsivad rahulikku, kõrge ruumikvaliteediga ja looduslähedast elukeskkonda mere ääres.
Kas tundsid ennast ära? Lähme uudistama.
Viimati muudetud: 2025-11-25 11:46:56
Küsi maaklerilt
Joshua James Viinalass
Kutseline vanemmaakler, tase 6
| Kutsetunnistuse nr. | 219717 |
| Mobiil | +372 5362 9161 |
| Telefon | +372 614 4600 |
| Keeled | ![]() ![]() ![]() |
| joshua.viinalass@arcovara.ee | |
| Vaata maakleri objekte (40) | |
Sarnased objektid
-
MaaRohkem infotMÕNUS MAAKOHT TALLINNA LÄHEDAL...Kivinaeri, Rummu küla, Kuusalu vald, Harju maakond...
- 15 336.00 m²
- ID339207
Lepiku tee 2, Veneküla, Rae vald, Harju maakond
- 47 706.00 m²
Nõgikikka 1, Haabersti linnaosa, Tallinn, Harju ma...
- 1 075.00 m²
Sarapiku tee 11, Aruküla alevik, Raasiku vald, Har...
- 1 429.00 m²











