https://www.arcovara.ee/343366
Müüa korter Suur-Posti 11/1, Kesklinn (Pärnu), Pärnu linn, Pärnu maakond
Detailid
| ID: | 343366 | www.arcovara.ee/343366 |
| Aadress: | Suur-Posti 11/1, Kesklinn (Pärnu), Pärnu linn, Pärnu maakond |
| Tubade arv: | 2 |
| Üldpind: | 32.30 m² |
| Energiaklass: | Energiamärgis puudub |
| Tehingu liik: | Müüa |
| Objekti tüüp: | Korter |
| Muu: | Elekter, Tsentraalne vesi, Aiaga ümbritsetud, Kinnine hoov, Uus kanalisatsioon, Boiler, Avatud köök, Köögimööbel, Katusekorter, TV, Konditsioneer, Mööbel, Internet, Pesumasin, Külmkapp, Dušš , Loomulik ventilatsioon, DigiTV |
| Korruste arv: | 2 |
| Korrus: | 2 |
| Objekti staatus: | Heas korras |
| Objekti tüüp: | Korteriomand |
| Katastri number: | 62511:080:1640 |
| Parkimine: | Hoovis (tasuta) |
| Hoone struktuuri tüüp: | Puit |
| Kanalisatsioon: | Tsentraalne |
| Küte: | Õhksoojuspump |
Müüa hubane korter Pärnu kesklinnas!
Korter Lisa lemmikutesseHind
| Hind | 76 000 € |
| m² hind | 2352.9 € |
Kirjeldus
Teise korruse 2-toaline katusekorter pika ajalooga puithoones ootab uut omanikku. Korter sobib hästi noortele esimeseks koduks või investeerimiseks ja lühiajalise üüriteenuse osutamiseks.
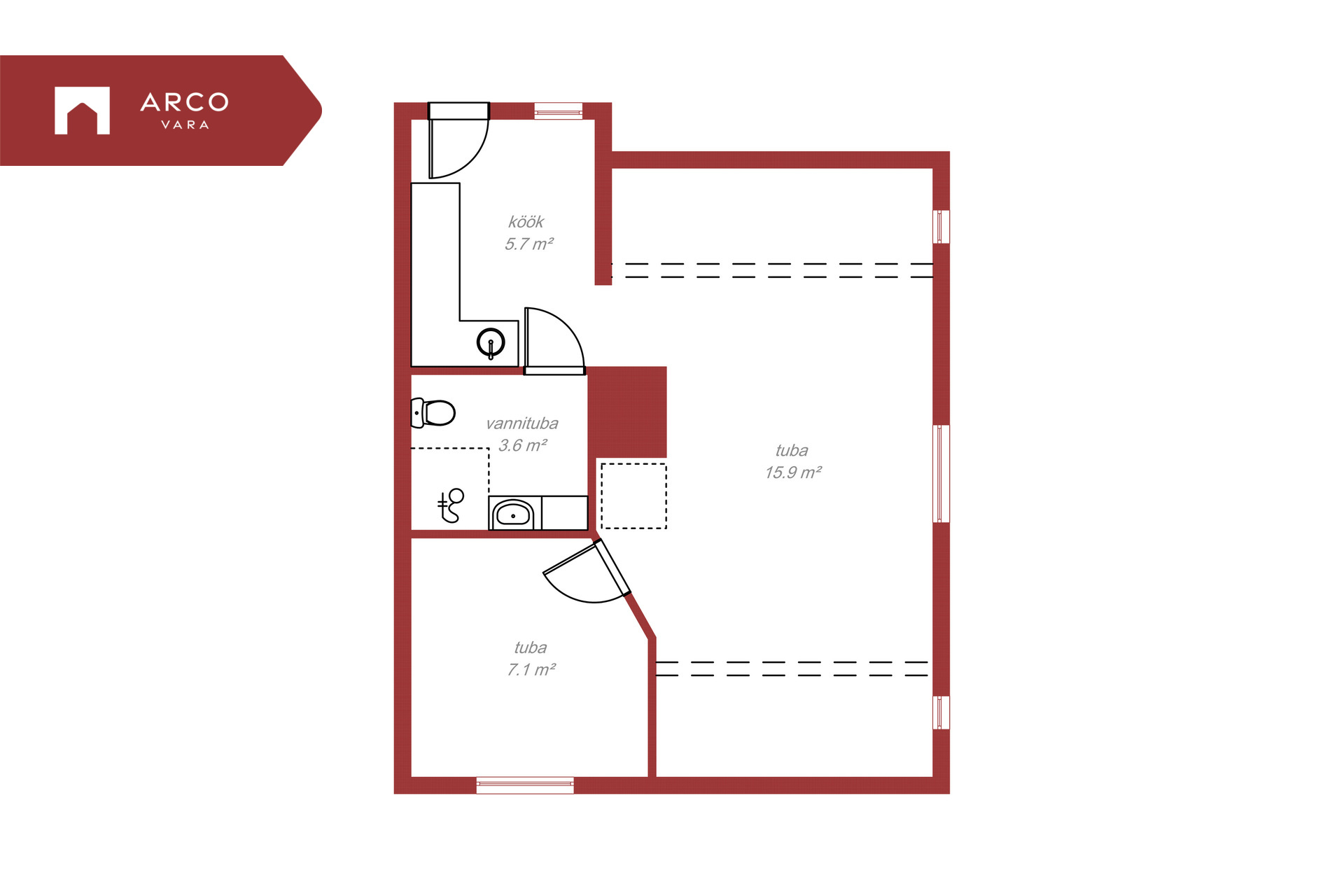
KORTER
Katusekorteri planeering hõlmab endas avatud läbikäidavat kööki, elutuba, magamistuba, duši- ja tualettruumi. Pööningule on lisaks ehitatud magamistuba kuhu pääseb elutoast. Katusekorteri m² mõõdetakse 1,6 m kõrguselt ja tegelikku põrandapinda on kokku oluliselt rohkem.
MAJA JA ASUKOHT
Kahekordne 4-korteriga puitmaja asub kesklinnas ja vajab renoveerimist.
Korteri asukoht on suurepärane – paikneb Pärnu kesklinnas, kus kõik eluks vajalik on jalutuskäigu kaugusel: poed, kohvikud, turg, koolid, lasteaiad, ühistranspordipeatused, kaubanduskeskused, rohealad ja palju muud. Pärnu rand asub ca 10 minutilise jalutuskäigu kaugusel.
KÜTE JA KULUD
Korterit köetakse õhksoojuspumbaga ja korterit saab jahutada suvisel ajal konditsioneeriga.
PANIPAIK JA PARKIMINE
Korteri omanik saab kasutada hoovis olevat kuuri panipaigana. Korteri omanikul on võimalus kasutada mõttelist osa hoovist. Parkida saab tänaval tasulisel parkimisalal.
Korter sobib hästi neile, kes hindavad asukohta ja kesklinna melu. Kui otsid endale kodu või investeerimisvõimalust, siis katusekorter kesklinnas on hea valik.
Võta ühendust ja tule vaata tunnetuse saamiseks korter üle.
Viimati muudetud: 2026-04-08 07:51:54
Küsi maaklerilt
Heiki Orav
Pärnu osakonna juht / Maakler
| Mobiil | +372 502 2038 |
| Telefon | +372 447 1430 |
| Keeled | ![]() ![]() |
| heiki.orav@arcovara.ee | |
| Vaata maakleri objekte (14) | |
Sarnased objektid
-
KorterRohkem infotVaata videotuuri -> võtmed kät...Jaama 3, Lihula linn, Lääneranna vald, Pärnu maak...
- 2 Tuba
- 43.90 m²
- 3.Korrus
- ID345170
Mustamäe tee 7, Kabli küla, Häädemeeste vald, Pärn...
- 2 Tuba
- 60.10 m²
- 1.Korrus
Väike-Posti 5, Kesklinn (Pärnu), Pärnu linn, Pärn...
- 2 Tuba
- 21.10 m²
- 2.Korrus
Vana-Sauga 2, Ülejõe, Pärnu linn, Pärnu maakond...
- 2 Tuba
- 46.70 m²
- 1.Korrus











