https://www.arcovara.ee/344452
Müüa korter Suur-Patarei 20/2, Põhja-Tallinna linnaosa, Tallinn, Harju maakond
Detailid
| ID: | 344452 | www.arcovara.ee/344452 |
| Aadress: | Suur-Patarei 20/2, Põhja-Tallinna linnaosa, Tallinn, Harju maakond |
| Tubade arv: | 3 |
| Üldpind: | 89.60 m² |
| Energiaklass: | B |
| Tehingu liik: | Müüa |
| Objekti tüüp: | Korter |
| Muu: | Tsentraalne vesi, Ühistransport, Aiaga ümbritsetud, Videokaamerad, Lift, Kinnine hoov, Avatud köök, Köögimööbel, WC eraldi, Vann, Mööbli võimalus, Trepikoda lukus, Pesumasin, Külmkapp, Dušš , Panipaik, Garderoob, Loomulik ventilatsioon, Sundventilatsioon, Panipaik, Kuivati |
| Korruste arv: | 5 |
| Korrus: | 3 |
| Ehitusaasta: | 2020 |
| Objekti staatus: | Valmis |
| Objekti tüüp: | Korteriomand |
| Katastri number: | 78401:101:3488 |
| Hoone struktuuri tüüp: | Betoon |
| Kanalisatsioon: | Tsentraalne |
| Uksed: | Turvauks |
| Küte: | Tsentraalne kaugküte |
MEREÄÄRNE MUGAVUS KALAMAJA SÜDAMES
Korter Lisa lemmikutesseHind
| Hind | 514 000 € |
| m² hind | 5736.6 € |
Kirjeldus
// Hommikukohv rõdul, meri akna taga ja Kalamaja rütm su ümber – tere tulemast koju //
MAJA
Suur-Patarei 20/2 maja eristub naaberhoonetest oma modernse ja pilkupüüdva arhitektuuriga. 2019. aastal ehitatud ja 2020. aastast kasutuses olev hoone on valminud AS Merko tuntud kvaliteedis – ehitus, millele võib kindel olla.
Targa kodu lahendus võimaldab reguleerida korteri temperatuuri kas või teisest maailma otsast – juba enne koju jõudmist ootab ees mugavalt soe (või jahe) kodu. Maja ja korterite planeeringud on läbi mõeldud, pakkudes maksimaalset mugavust nii igapäevaeluks kui ka pikemaks puhkuseks.
Lisaks korteri juurde kuuluvale parkimiskohale on elanikele loodud eraldi ruumid jalgrataste ja mopeedide hoiustamiseks – lausa kaks erinevat rattaparklat ja lisaks spetsiaalne rattaruum.
Tule koos minuga videotuurile: https://youtu.be/GV-oPtUB35w
KORTER JA SISUSTUS
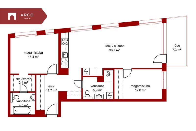
Korteri uksest sisenedes tervitab avar ja valgusküllane esik koos integreeritud garderoobiga. Otse ette jääb privaatne magamistuba, millel on luksuslik walk-in garderoob ja oma vannituba. Vannitoas ootab lõõgastumiseks vann ning aknast avaneb rahustav merevaade.
Magamistoast väljudes asub vasakul avar elutuba koos modernse kööginurga ja rõduga – ideaalne hommikukohviks või õhtuseks päikeseloojanguks. Elutoa kõrval paikneb lisatuba, mida saab kasutada külaliste toana, kontorina või lastetoana. Korteris on ka teine vannituba koos duši ja WC-ga – ideaalne külalistele või suuremale perele.
ÜLALPIDAMISKULUD
Kõiki kulusid hõlmavad kommunaalarved on suvisel ajal keskmiselt 270 € ja talvel 320 € kuus – energiatõhus majalahendus aitab hoida kulud kontrolli all.
ASUKOHT JA ÜMBRUS
Suur-Patarei 20/2 asub Kalamaja südames – vahetus läheduses ootavad mõnusad kohvikud, rohelised pargid ja põnevad kultuurisündmused. See piirkond on tuntud oma hubase atmosfääri, loovuse ja elustiili poolest.
Kõigest 7-minutilise jalutuskäigu kaugusel asub Rimi toidupood, kuhu pääseb mugavalt läbi Ilmarise kvartali. Kalamaja armastatud kohvikud, pagariärid ja tänavatoidukohad on samuti vaid mõne minuti kaugusel.
Kultuurikatla ja Noblessneri sadama alal toimuvad aastaringselt erinevad üritused, kontserdid ja näitused – kõik jääb mugava 10–15-minutilise jalutuskäigu kaugusele.
Reisisadam asub autoga vaid 8 minuti kaugusel, jalutades veidi üle 15 minuti.
Ja hommikukohvi ning värske saiakese saad kohe maja kõrval asuvast kohalikust pagarikojast Patarein – naudi kalamajalikku elu igas detailis.
Soovid midagi erilist ja kvaliteetset Tallinna ühes hinnatuimas piirkonnas?
Võta ühendust ja tule vaatama – see korter võib olla just sinu uus kodu.
Viimati muudetud: 2026-02-26 14:09:28
Küsi maaklerilt
Joshua James Viinalass
Kutseline vanemmaakler, tase 6
| Kutsetunnistuse nr. | 219717 |
| Mobiil | +372 5362 9161 |
| Telefon | +372 614 4600 |
| Keeled | ![]() ![]() ![]() |
| joshua.viinalass@arcovara.ee | |
| Vaata maakleri objekte (27) | |
Sarnased objektid
-
KorterRohkem infotKODULAHE - avarad kodud rohelu...Soodi 6/2-15, Haabersti linnaosa, Tallinn, Harju ...
- 3 Tuba
- 72.00 m²
- 1.Korrus
- ID336541
Pae 64, Lasnamäe linnaosa, Tallinn, Harju maakond...
- 1 Tuba
- 32.80 m²
- 8.Korrus
Aia 12, Kehra linn, Anija vald, Harju maakond
- 2 Tuba
- 43.70 m²
- 2.Korrus
Vormsi 8, Lasnamäe linnaosa, Tallinn, Harju maako...
- 2 Tuba
- 52.80 m²
- 3.Korrus










































