https://www.arcovara.ee/344611
Müüa maja Karu, Kohala-Eesküla, Rakvere vald, Lääne-Viru maakond
Detailid
| ID: | 344611 | www.arcovara.ee/344611 |
| Aadress: | Karu, Kohala-Eesküla, Rakvere vald, Lääne-Viru maakond |
| Üldpind: | 276.80 m² |
| Kinnistu suurus: | 6 001.00 m² |
| Energiaklass: | A |
| Tehingu liik: | Müüa |
| Objekti tüüp: | Maja |
| Muu: | Elekter, Tööstusvool, Elekter 25A, Parkett, Pakettaknad, Naabrivalve, Uus kanalisatsioon, Boiler, Kõrged laed, Avatud köök, Saun, Vann, Dušš , Garderoob, Lemmikloom lubatud, Sundventilatsioon |
| Korruste arv: | 1 |
| Objekti staatus: | Valmimisjärgus |
| Objekti tüüp: | Kinnisasi |
| Katastri number: | 66101:001:0404 |
| Parkimine: | Hoovis (tasuta) |
| Hoone struktuuri tüüp: | Betoon |
| Kanalisatsioon: | Lokaalne |
| Küte: | Õhksoojuspump |
Müüa ehitusjärgus maja, suure kinnistuga.
Maja Lisa lemmikutesseHind
| Hind | 120 000 € |
| m² hind | 433.5 € |
Kirjeldus
Kinnistu suurusega 6001 m2
Kinnistul ehitusjärgus hoone.
Majale on 2025. aasta novembris paigaldatud plekk-katus ning kolmekordsed pakettaknad.
Olemas üksikelamu ehitusprojekt.
Hoone lühikirjeldus
Elamule rajatakse plaatvundament. Seinakonstruktsioonid kergplokist. Välisseina viimistlus krohv. Katusekatte materjal plekk. Aknaraamid PVC ja välisuks soojustatud alumiinium. Hoone põhiküte planeeritakse õhk-vesi soojuspump (vesi-põranadaküte). Hoonet hakkab teenindama soojustagastusega ventilatsioonisüsteem, mis ühendatakse ka soojuspumbaga. Hoovi poole ehitatakse puidust terrass.
Hetkel teostatud järgnevad ehitustööd:
on rajatud ja soojustatud elamu vundament, on rajatud elamu välisseinad, on rajatud katuse kandvad konstruktsioonid, valatud on aluspõrand, rajatud on küttetorustikud ja paigaldatud on küttekollektorid
ning rajatud on konstruktsioonidesisesed vee- ja kanalisatsioonitorustikud.
Hoone tehnilise näitajad
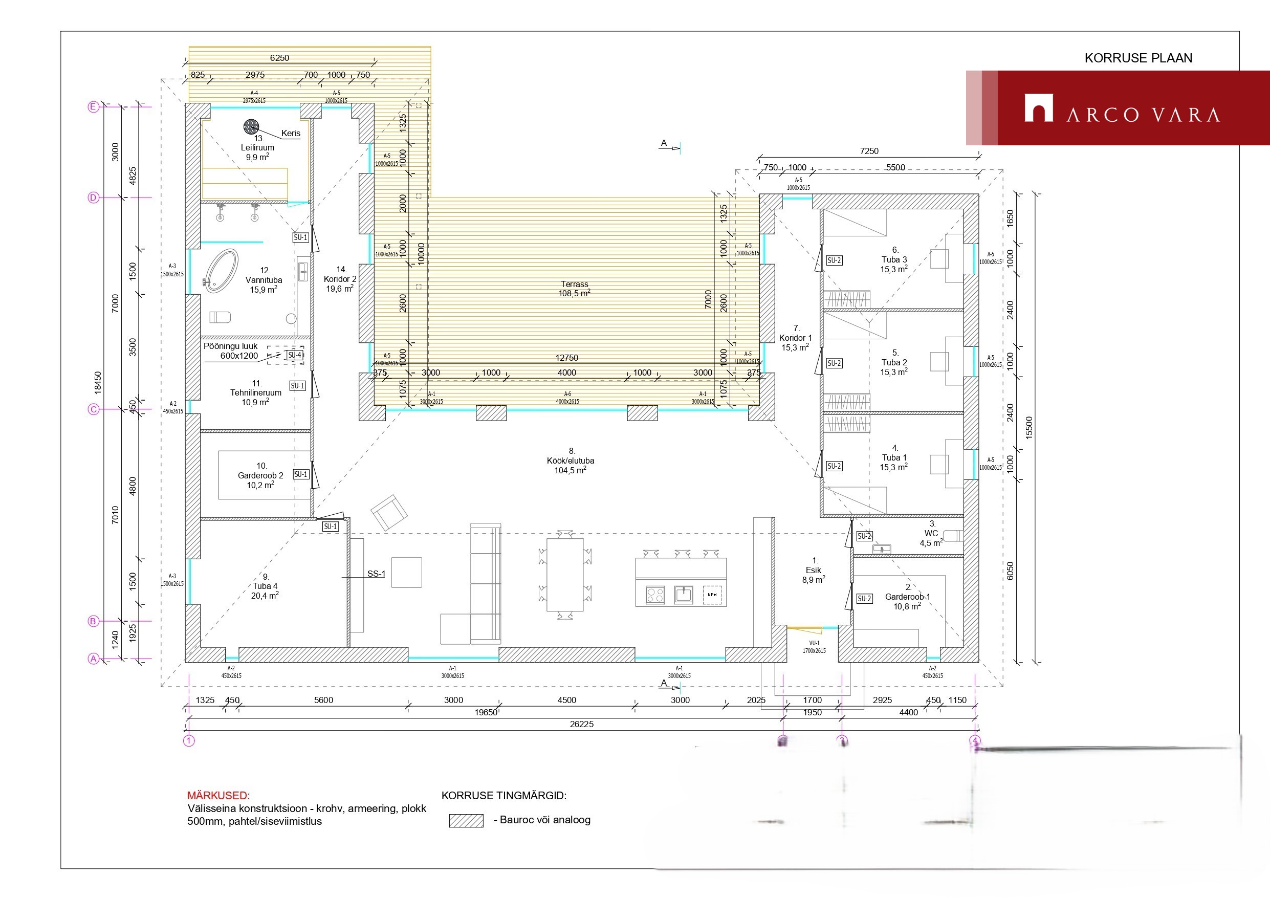
Ehitisealune pind: 351,9 m²
Maapealsete korruste arv: 1
Köetav pind: 276,8 m²
Ruumide eksplikatsioon
Esik 8,9m²
Garderoob nr.1 10,8m²
WC 4,5m
Tuba 1 15,3m²
Tuba 2 15,3m²
Tuba 3 15,3m²
Koridor 1 15,3m²
Köök/elutuba 104,5m²
Tuba 4 20,4m²
Garderoob 2 10,2m²
Tehnilineruum 10,9m²
Vannituba 15,9m²
Leiliruum 9,9m²
Koridor 2 19,6m²
Tehnovõrgud
Elektrisüsteemi liik:
Lisaks lokaalne; elamu katusele paigaldatakse päikesepaneelid,paneelide võimsus ja täpsem kogus lahendatakse eraldi projektiga
Veevarustuse liik: puudub
veeühendus on kavandatud olemasoleva puurkaevu baasil, puurkaevon rajatud ja kasutusvalmis (sh on paigaldatud puurkaevu uusmanteltoru.
Kanalistatsioon: puudub
kanalisatsiooniühendus on kavandatud lahendada biopuhasti baasil,ehitustöid kanalisatsioonisüsteemi rajamiseks ei ole veel teostatud
Soojusvarustuse liik: kavandatud lokaalküte
Soojusallikas: õhk-vesi soojuspump/paidaldamata
Energiaallikas: õhusoojus+elekter
Ventilatsioon: kavandatud on soojustagastusega sundventilatsioon /ventilatsioonitorustik rajamata ja -agregaat paigaldamata
Side: õhu kaudu levivad sidelahendused
Kaugus keskustest:
Rakvere kesklinnast ca 12km
Uhtna alevikust ca 3km
Lähim lasteaed, Põhikool ja kauplus asuvad Uhtnas.
Lähim bussipeatus ca 750m
Teekatte säilitamiseks pinnatakse 2025 aastal ära kinnistule viiv kruusatee.
Kui otsid suurt suurt kinnistut, kus on:
-privaatsus: naabrid on kaugemal, keegi ei vaata su aknast sisse, saad oma kinnistul end vabalt tunda;
-rahu ja vaikus: kuna naabrid on kaugemal, ei sega su rahu ei naabrilaste õuemängud ega naabrite juurde suveõhtutel kokku tulev grilliseltskond;
-rohkelt põnevaid aiakujundusvõimalusi: suurele kinnistule saab luua võrratu iluaia lillepeenarde, saab kujundada lastele avara mängunurga, panna püsti grillimaja, väliköögi või kasvuhoone;
-põlispuud, mis suurel kinnistul kasvavad, lisavad kinnistule väärtust, pakuvad privaatsust ning kaitset nii päikese kui ka tuule eest;
-kõigil on palju ruumi: nii oma harrastustega tegeleda kui ka lastel joosta ja mängida, liikumisvabadust naudivad ka pere lemmikloomad.
Helista ja lähme Sinu Pere uut kodu vaatama!
Viimati muudetud: 2026-03-06 12:08:06
Küsi maaklerilt
Mari-Liis Kapstas
Maakler
| Mobiil | +372 5457 2145 |
| Telefon | +372 324 0888 |
| Keeled | ![]() ![]() ![]() |
| mari-liis.kapstas@arcovara.ee | |
| Vaata maakleri objekte (23) | |
Sarnased objektid
-
MajaRohkem infotMÜÜA MAJA MÕDRIKU, PELTOLA, VI...Peltola , Mõdriku küla, Vinni vald, Lääne-Viru maa...
- 2 Tuba
- 81.70 m²
- ID341060
Rohu 5, Rakvere linn, Lääne-Viru maakond
- 4 Tuba
- 110.00 m²
- 2.Korrus
Papli 9, Sõmeru alevik, Rakvere vald, Lääne-Viru ...
- 4 Tuba
- 189.70 m²
Vabaduse 13, Rakvere linn, Lääne-Viru maakond
- 6 Tuba
- 148.00 m²


























