https://www.arcovara.ee/342261
Müüa maja Tormi 6, Rakvere linn, Lääne-Viru maakond
Detailid
| ID: | 342261 | www.arcovara.ee/342261 |
| Aadress: | Tormi 6, Rakvere linn, Lääne-Viru maakond |
| Tubade arv: | 2 |
| Üldpind: | 153.00 m² |
| Kinnistu suurus: | 3 684.00 m² |
| Energiaklass: | Energiamärgis puudub |
| Tehingu liik: | Müüa |
| Objekti tüüp: | Maja |
| Muu: | Elekter, Tööstusvool, Elekter 25A, Pakettaknad, Tsentraalne vesi, Ühistransport, Naabrivalve, Aiaga ümbritsetud, Kinnine hoov, Kõrvalhoone, Kõrged laed, Saun, Telefon, Loomulik ventilatsioon, Eraldi köök, Kelder |
| Korruste arv: | 1 |
| Korrus: | 1 |
| Ehitusaasta: | 1948 |
| Objekti staatus: | Valmis |
| Objekti tüüp: | Kinnisasi |
| Katastri number: | 66301:001:0240 |
| Parkimine: | Lähedal (tasuta), Tänaval (tasuta), Hoovis (tasuta) |
| Hoone struktuuri tüüp: | Palkmaja |
| Kanalisatsioon: | Tsentraalne |
| Küte: | Ahi |
Hea planeeringu suur krunt koos majaga
Maja Lisa lemmikutesseHind
| Hind | 110 000 € |
| m² hind | 719 € |
Kirjeldus
Müüa suur kinnistu Rakveres – Tormi tn piirkonnas
Rakvere linna põhjapoolses, rahulikus ja hinnatud piirkonnas on müügile tulnud hoonestatud kinnistu suurusega 3684 m² – mis on linnasisese kinnistu kohta erakordselt suur ja võimaluste rohke.
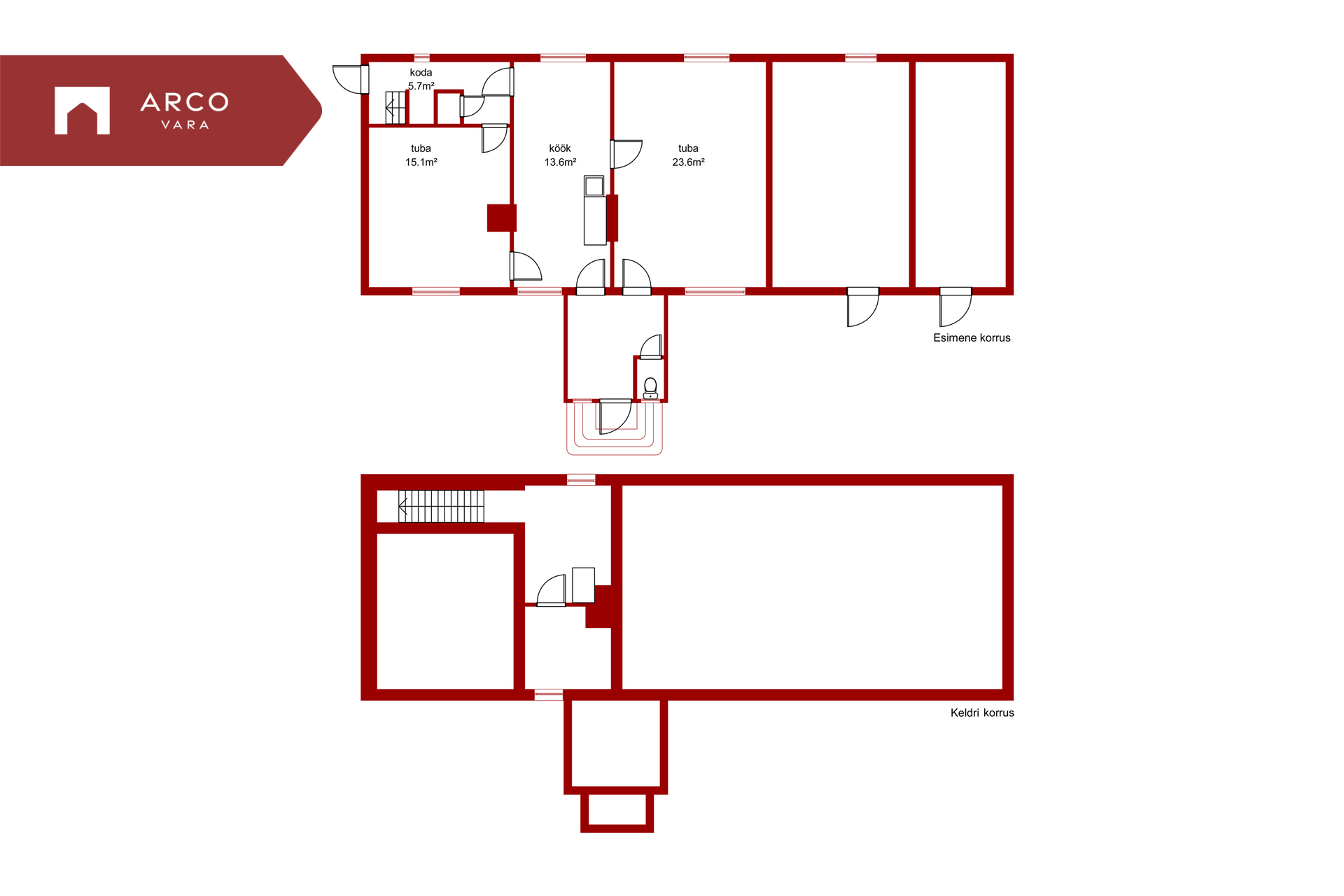
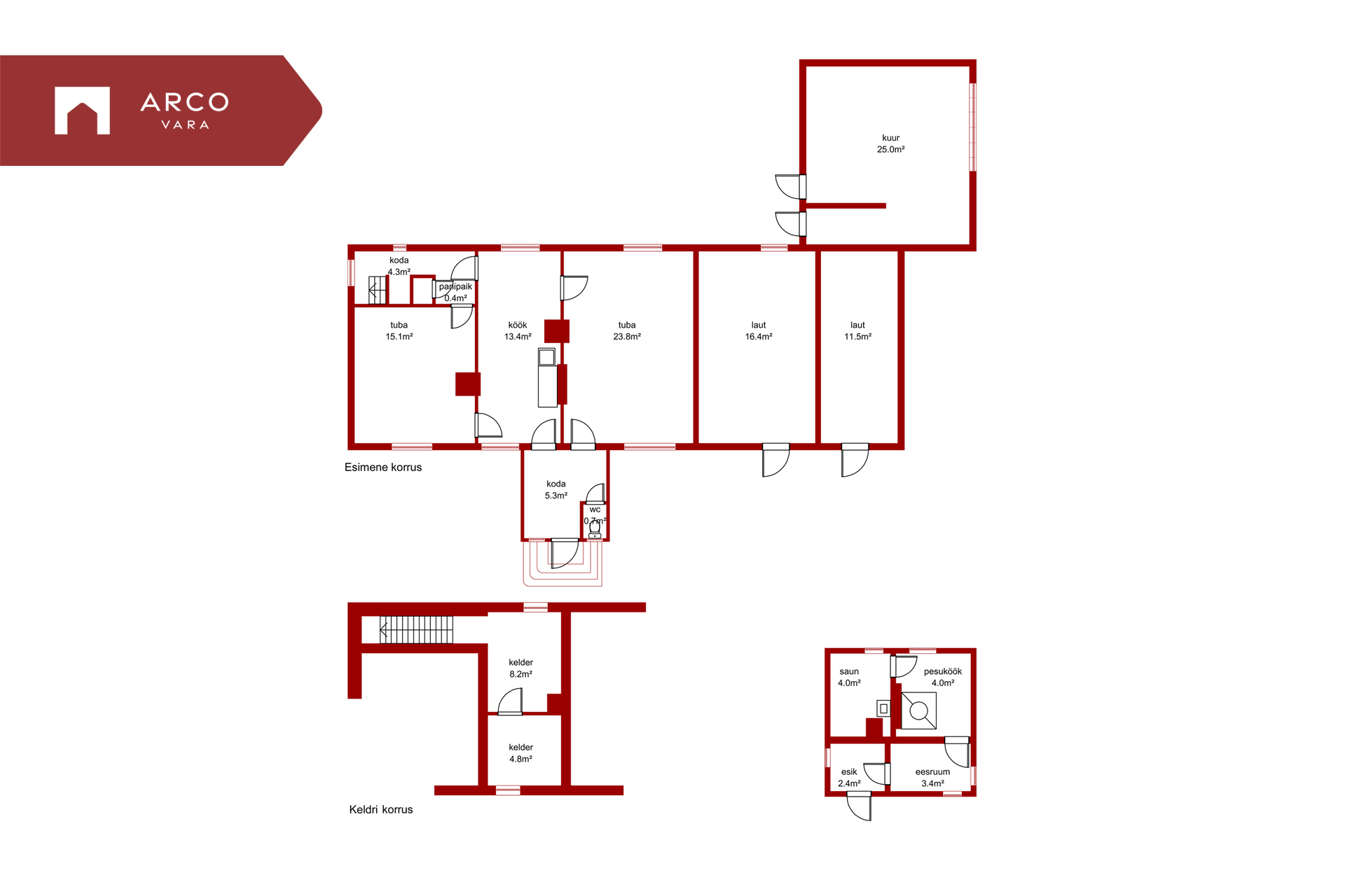
Elamu
Ehitusaasta: 1949
Konstruktsioon: palkmaja, katusekatteks plekk
Planeering: 2 tuba, köök, avar kelder ning abiruumid
Liitumised: tsentraalne vesi ja kanalisatsioon
Lisaks paikneb kinnistul eraldi hoone, mille alla on koondatud kuur, garaaž ja saun.
Seisukord
Elamu ja kõrvalhooned vajavad kaasajastamist, kuid annavad uuele omanikule võimaluse kujundada kodu ja õueruum just oma maitse järgi.
Aed ja ümbrus
Kinnistu on piiratud aiaga ning hoovis kasvab rikkalik viljapuuaed ja õuna aed. Avar krunt loob võimaluse nii pereeluks kui ka aiapidamiseks või uue elamu rajamiseks.
Asukoht
Tormi tänava piirkond on hinnatud oma rahulikkuse ja samas mugava ligipääsu tõttu linna teenustele.
See kinnistu on ideaalne neile, kes hindavad privaatsust, ruumi ja võimalust luua endale isikupärane kodu Rakvere rohelises ja rahulikus piirkonnas.
Seda kinnistut saab ka jagada, kaheks väiksemaks kinnistuks või sobib ka arenduseks
Viimati muudetud: 2026-03-25 09:55:43
Küsi maaklerilt
Andrus Peiel
Rakvere osakonna juht / Vanemmaakler
| Mobiil | +372 527 1011 |
| Telefon | +372 324 0888 |
| Keeled | ![]() ![]() |
| andrus.peiel@arcovara.ee | |
| Vaata maakleri objekte (35) | |
Sarnased objektid
-
MajaRohkem infotMÜÜA MAJA MÕDRIKU, PELTOLA, VI...Peltola , Mõdriku küla, Vinni vald, Lääne-Viru maa...
- 2 Tuba
- 81.70 m²
- ID341060
Neeme , Samma küla, Viru-Nigula vald, Lääne-Viru m...
- 2 Tuba
- 84.00 m²
- 1.Korrus
Vabaduse 66/1, Rakvere linn, Lääne-Viru maakond
- 6 Tuba
- 375.50 m²
- 3.Korrus
Karu , Kohala-Eesküla, Rakvere vald, Lääne-Viru ma...
- 276.80 m²















