https://www.arcovara.ee/342625
Müüa maa Eha tee, Lemmetsa küla, Pärnu linn, Pärnu maakond
Detailid
| ID: | 342625 | www.arcovara.ee/342625 |
| Aadress: | Eha tee, Lemmetsa küla, Pärnu linn, Pärnu maakond |
| Kinnistu suurus: | 81 500.00 m² |
| Energiaklass: | Energiamärgis puudub |
| Tehingu liik: | Müüa |
| Objekti tüüp: | Elamumaa, Sotsiaalmaa, Transpordimaa |
| Muu: | Detailplaneering |
| Objekti tüüp: | Kinnisasi |
| Katastri number: | 15904:003:2057 |
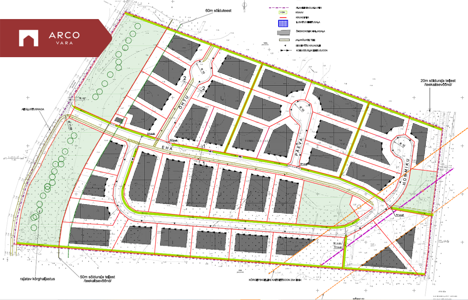
Müüa 47 krundist koosnev hea asukohaga arendusala.
Maa Lisa lemmikutesseHind
| Hind | 745 000 € |
| m² hind | 9.1 € |
Kirjeldus
Detailplaneeringu alusel on moodustatud 36 elamumaa krunti. Elamumaa krundid on suurusega vahemikus 1206 - 2506 m².
Kruntide ehitusõigused.
Igale elamukrundile on ette nähtud kahe hoone rajamise võimalus. Üks ühepere elamu ja üks abihoone. Krundi täisehituse protsent on olenevalt krundi suurusest 11-20 %. Suurim lubatud ühepereelamu kõrgus projekteeritud maapinnast on 9 m. Lubatud on ühepereelamule kaks korrust. Abihoone lubatud suurim kõrgus on 6 m. Abihoonele on lubatud üks korrus. Elumajal on ühepoolse või kahepoolse viilkatusega katusemahu lahendus.
Veevarustus ja kanalisatsioon on planeeritud ühisveevärgi ja kanalisatsiooni kaudu. Tootmismaa krundid on kanalisatsioonipumpla rajamiseks ja elektri alajaama tarbeks. Neli krunti üldkasutatava maana on planeeritud haljasalade rajamiseks.
Viimati muudetud: 2025-10-28 10:32:02
Küsi maaklerilt
Heiki Orav
Pärnu osakonna juht / Maakler
| Mobiil | +372 502 2038 |
| Telefon | +372 447 1430 |
| Keeled | ![]() ![]() |
| heiki.orav@arcovara.ee | |
| Vaata maakleri objekte (27) | |
Sarnased objektid
-
MaaRohkem infotMüüa kinnistu Kõrsa külas!Pauli, Kõrsa küla, Tori vald, Pärnu maakond
- 5 037.00 m²
- ID337826
Pärnjõe tee 2a, Pärnjõe küla, Põhja-Pärnumaa vald,...
- 44 546.00 m²
Karukella tee 15, Papsaare küla, Pärnu linn, Pärnu...
- 2 100.00 m²
Nurmeveere, Pulli küla, Tori vald, Pärnu maakond
- 37 404.00 m²










