https://www.arcovara.ee/342239
Müüa maja Lepiku 1a, Karksi-Nuia linn, Mulgi vald, Viljandi maakond
Detailid
ID: | 342239 | www.arcovara.ee/342239 |
Aadress: | Lepiku 1a, Karksi-Nuia linn, Mulgi vald, Viljandi maakond |
Tubade arv: | 6 |
Üldpind: | 202.90 m² |
Kinnistu suurus: | 704.00 m² |
Energiaklass: | Energiamärgis puudub |
Tehingu liik: | Müüa |
Objekti tüüp: | Maja |
Muu: | Elekter, Tööstusvool, Elekter 20A, Pakettaknad, Metsa läheduses, Tsentraalne vesi, Ühistransport, Naabrivalve, Aiaga ümbritsetud, Garaaž, Kinnine hoov, Eraldi sissepääs, Kõrvalhoone, Köögimööbel, Saun, WC eraldi, Vann, Kamin, Mööbel, Mööbli võimalus, Internet, Dušš , Telefon, Panipaik, Loomulik ventilatsioon, DigiTV, Eraldi köök, Panipaik, Kelder, Planeering läbi mitme korruse |
Korruste arv: | 2 |
Korrus: | 2 |
Ehitusaasta: | 1982 |
Objekti staatus: | Valmis |
Objekti tüüp: | Kinnisasi |
Katastri number: | 28701:001:0840 |
Parkimine: | Garaaž/Parkimismaja (tasuta) |
Hoone struktuuri tüüp: | Puit |
Kanalisatsioon: | Tsentraalne |
Küte: | Lokaalne keskküte, Pelletküte |
Vaata videotuuri ja maja plaane -> maja läbi 3-korruse
Maja Vaata ka videot Lisa lemmikutesseHind
Hind | 140 000 € |
m² hind | 690 € |
Kirjeldus
TULE MINUGA VIDEOTUURILE:
https://youtu.be/NgJUqI6bBJ0
NB! ANNA TEADA ENDALE SOBIV AEG JA LÄHME KOOS VAATMA!
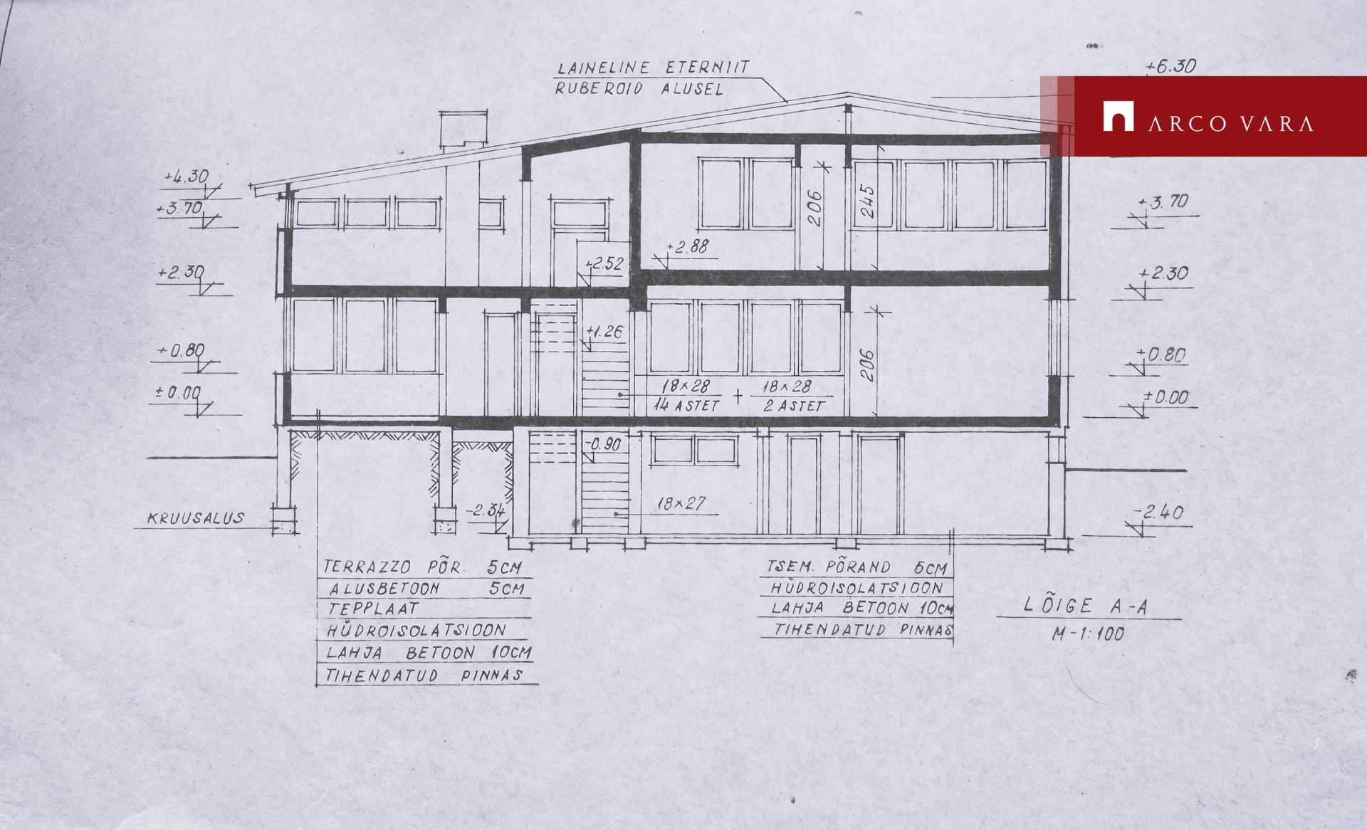
Müüa 3-korruseline (koos täiskeldriga) maja Karksi-Nuias, mis on erilise individuaalelamu projektiga aastast 1982.
MAJA ~202,9 m2 -> VAATA PLAANE
3-korruseline maja, mis on säilinud muutmata kujul ja ruumid on remontivajavad, kuid enamus aknaid on majas vahetatud (1 ja 2 korrus, vahetamata on ainult keldrikorrusel ja verandal).
Majja on kaks sissepääsu: üks maja eest ja teine maja tagant.
Keldrikorrusel asub (kandevkonstruktsioon betoonist):
- saun (~6m2): puuküttega keris
- pesemisruum: ~6m2
- sauna eesruum koos kaminaga: ~10m2
- tehnoruumid: katlaruum ja keskütteboileriruum
- 3 panipaika: millest kahes saab hoida hoidiseid ja suurem on küttepuudele, mis mahutab ~20m3 puid.
1-korrusel asub (kandevkonstruktsioon puit):
- veranda
- esik
- vannituba
- elutuba
- wc
- köök
- 1 magamistuba
2-korrusel asub (kandevkonstruktsioon puit): 2 rõdu
- 3 magamistuba: ühel on rõdu
- elutuba: pääs rõdule
- trepihall
- veranda
Teisele korrusele on võimalik välja ehitada eraldi vannituba ja majapidamisruum.
TEHNILISED ANDMED:
Maja konstruktsioonid algse projekti järgi:
- alusmüürid: 30cm betoonist vundamendiplokkidest;
- seinad: väikeplokkidest ja silikaattellistest;
- katuslagi: raudbetoonpaneelid ruberoidkattega;
- põrandad: betoonist;
- vahelaed ja kandvad osad: puidust;
- välisviimistlus: silekrohv värvitud ühte tooni elamuga, värvitud puitkarniisid.
AKNAD (vahetatud 2017): enamus uued 2x pakettaknad, vahetamata on ainult keldrikorrusel väikesed aknad ja veranda aknad.
KATUS (vahetatud 2016): on heas korras, katusekate on plekk (trapetsprofiil).
ÕUEALA JA HOOV
Kinnistu on aiaga piiratud ja suure hoovipoolse terrassiga (48m2).
Lisaks olemas garaaž koos panipaigaga.
Hoovis suur kasvuhoone (püstitatud ~2021).
KÜTE / KOMMUNIKATSIOONID
Elekter: olemas tööstusvool / 3x20A
Majale on paigaldatud (2018) pelletikatel keskküttesüsteem.
Keskküttesüsteemi osadeks on pelleti küttekatel keldris, mis kütab tubades asuvaid radiaatoreid.
Hoonel on tsentraalnevesi ja kanalisatsioon.
MAJA ÜLALPIDAMISKULUD:
Kommunaalmaksed aastaringselt ~30-50€/kuu, mis sõltub suuresti vee- ja elektritarbimisest:
- prügi ~7.99€/kuu, mis sisaldab 2xkuus tühjendamist;
- Nublu (suitsu- ja vinguandur) ~6/kuu;
- vesi: vastavalt tarbimisele;
- elekter: vastavalt tarbimisele.
PELLETI KULU: ~1000-1200€ / aastas (~200€/kuu), mis sõltub suuresti välistemperatuurist.
ASUKOHT / PIIRKOND
Kõik vajalik Karksi-Nuia linnas asub jalutuskäigu kaugusel, lisaks Nuia Järv (~600m) ja imeline Karksi Ürgorg (~1km), mis asub majast umbes 1 km kaugusel.
Ürgorus asub ka välijõusaal ning discgolfi rada.
Lähedal asub:
~ 220 m Karksi-Nuia bussipeatus (lähim peatus)
~ 310 m Karksi-Nuia Lasteaed (lähim Lasteaed)
~ 680 m August Kitzbergi nimeline Gümnaasium, kus on nii jõusaal kui ka ujula.
Läti kõige lähemad keskused on Ruhja (~28 km) ja Valmiera (~70 km).
Viljandi ~32 km
Pärnu ~80 km
Tartu ~98 km
Tallinn ~185 km
Riia ~185 km
Lisaküsimuste korral võtke kindlasti ise julgesti ühendust ja lähme koos vaatama!
Viimati muudetud: 2025-09-30 21:13:52
Küsi maaklerilt

Maie Sedrik
Usaldusväärne kinnisvaramaakler aastast 2004
Maakler
Mobiil | +372 5645 4682 |
Telefon | +372 651 3399 |
Keeled | ![]() ![]() ![]() |
maie.sedrik@arcovara.ee | |
Vaata maakleri objekte (13) |
Sarnased objektid
-
MajaRohkem infotSuure krundiga kahekorruseline...Lõikuse 18, Viljandi linn, Viljandi maakond
- 4 Tuba
- 154.50 m²
- ID338909
Tuisu 7, Viljandi linn, Viljandi maakond
- 4 Tuba
- 106.80 m²
Kõrgemäe , Viljandi linn, Viljandi maakond
- 3 Tuba
- 130.00 m²
Korstnajala , Puiatu küla, Viljandi vald, Viljandi...
- 4 Tuba
- 163.50 m²